

lot 3166 Clarence Circuit, Oran Park NSW 2570
House
4 Beds
3 Baths
2 Garage
495m2
Currently Closed
The agent hasn't enabled live bidding yet. Be first to know when it opens.
Skip the market
Enter your offer for immediate review. Successful bids can settle in 14 days.
No Clauses Required
Property Highlights
Local performance data and area demographics updated in real-time.
Growth Zone
12.4% Annual appreciation
Top Schools
Tier 1 Primary Zone
Exclusive Benefits
Available to customers who purchase through the Wurley ecosystem.
$200 Discount
Conveyancing Fees
$1,000 Cash
Wurley Loan Bonus
Exclusive Benefits
Available to customers who purchase through the Wurley ecosystem.
$200 Discount
Conveyancing Fees
$1,000 Cash
Wurley Loan Bonus
Skip the market
Enter your offer for immediate review. Successful bids can settle in 14 days.
No Clauses Required
Currently Closed
The agent hasn't enabled live bidding yet. Be first to know when it opens.
Property Highlights
Local performance data and area demographics updated in real-time.
Growth Zone
12.4% Annual appreciation
Top Schools
Tier 1 Primary Zone
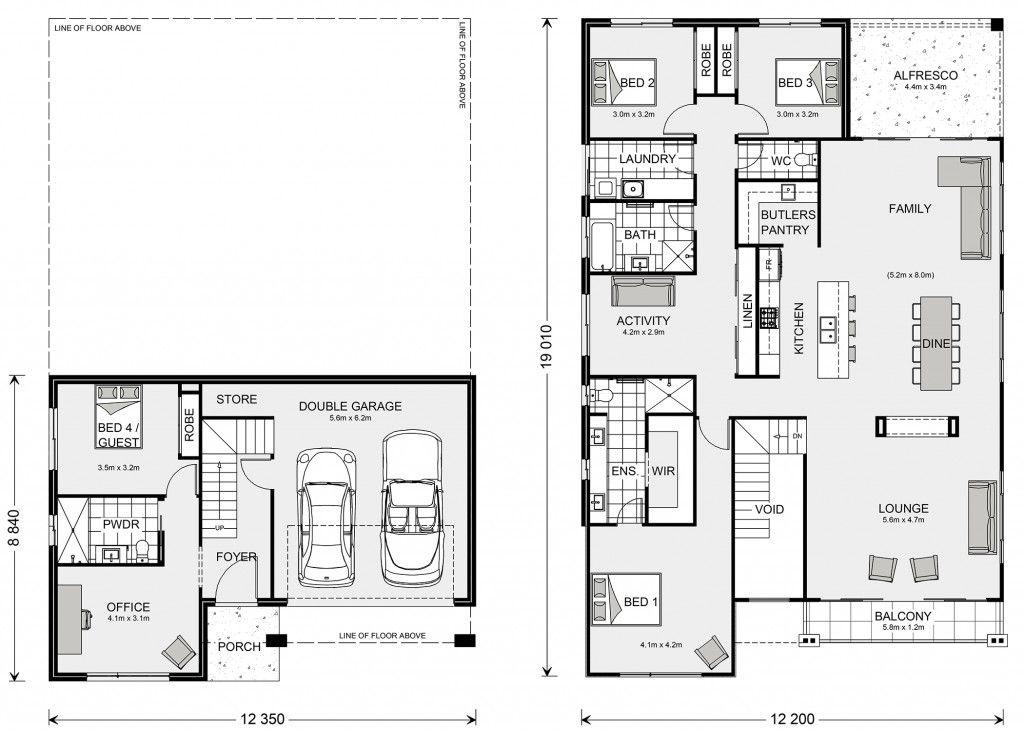
OPPORTUNITY TO BUILD YOUR DREAM HOME IN 'ORAN PARK' , , , , , , GJ Gardner Macarthur Presents 'The STAMFORD 320' , , , TRANCHE 41-3 ORAN PARK , , , REGISTRATION DUE AUGUST 2025 , , , , , , An abundance of living space, both inside and out, makes Stamford the ideal family home. A separate ground floor bedroom with a bathroom and office space is ideal for teenagers or guests, while the upper floor features a separate kids’ zone with activity room and family bathroom. , , , Entertaining is covered thanks to the luxurious centralised kitchen with butler’s pantry overlooking light filled open-plan living areas. A separate semi-open lounge to the front, featuring an integrated balcony enhances the feeling of space. Sliding glass doors open to the rear to reveal a covered alfresco area allowing cooling cross breezes to flow through the home. , , , With an impressive two storey frontage, the Stamford is designed for steep sites that slope down to the front of the home. , , , , , , Premium Inclusions: , , , - Designer Inclusions Package , , , - Site costs up to a 1m cut and fill , , , - Upgraded ceiling heights to FF 2700mm , , , - Steel Frame and Truss Including 50 Year Structural Guarantee , , , - Completely customisable design including downlights and power points throughout to suit the space , , , - Landscaping allowance including turf, garden and coloured concrete driveway allowance , , , - Floor coverings throughout including carpet to bedrooms , , , - 900mm Smeg kitchen appliances including dishwasher , , , - Custom cabinetry throughout with 20mm stone benchtops to Kitchen, Laundry & Vanities , , , - Ducted air conditioning - 7 Star BASIX allowance , , , - Recessed niches to all showers , , , - Flyscreens to all windows and sliding doors , , , - Cold water tap to fridge space , , , - Alarm System and much more! , , , , , , Contact your New Home Consultantfor a full list of inclusions and further details; , , , Phone: 0433 511 165 , , , Email: Vandita.Dixit@gjgardner.com.au , , , , , , This package is based on Land Pricing = $ 690,500 , , , , , , Photos are for illustration purposes only. Refer to our Design Inclusions brochure & House and Land package for more information, or contact your New Home Consultant. , , , Price hold allowance included up to the anticipated registration date.
Loading...
495 m2
-- m2
2
3
* Disclaimer: This property is a third-party listing. All information provided is sourced externally and meant for your convenience.
Find out how much money you need to own a property
In case of any inquiry, please fill out the contact form and reach to you. We will get back to you shortly.
Explore specialised services to help you settle in.